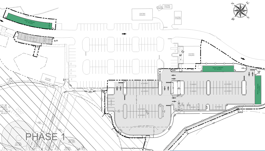
Palm Coast to add 130 new parking spaces to Indian Trails Sports Complex by June

The spaces will include 92 asphalt and 44 impervious parking spaces. Adding lighting to more fields at the complex is next on the city's list for the parks.


  • Palm Coast Observer
  • News
  • Share

Over 130 new parking spaces will be added to the Indian Trails Sports Complex by June 2026. 

The city of Palm Coast has a budget of $1.5 million to complete the project but, stormwater and engineering architect Eric Gebo said, they believe the project will come in well under budget. The Palm Coast City Council approved the project unanimously at its Jan. 6 meeting. 

The project will be performed by the in-house Public Works Department’s special projects division and will add 101 asphalt parking spaces and 34 grass parking spaces, roughly doubling the number of available parking spaces at the complex. The funding for the project will come out of city impact fees.

The project will begin construction in February and is expected to be completed by June. The expanded parking area will remove some of the land outside of the T-ball area.

Just by doing the project in-house, instead of outsourcing the work, Gebo said, the city will save $350,000. Parking has been an issue at Indian Trails Sports Complex “almost since its inception,” Parks & Recreation Director James Hirst said. 

Last June, he said, the complex had 150 lacrosse teams come out to the complex, each with 13 players, plus parents, and other sport events occurring at the same time.

“Parking has been a kind of consistent issue with this complex,” Hirst said. 

Lighting is still on the city’s list for Indian Trails, too. Stormwater Director Carl Cote said the city has just added lighting to four baseball fields and additional lighting is in the city’s five-year capital improvement plan for the north multiuse fields around the track and two other fields.

Lighting and parking are ongoing issues across the city’s parks. Only two of Palm Coast’s parks have field lighting, limiting the number of parks that can be used by local sports teams during the evenings. Indian Trails Sports Complex is the largest and most used park for sports and sports tournaments. 

Cote said while it is in the five-year plan to add additional to Indian Trails’ fields, they will have to revisit the budget after this project and a project expanding parking at Waterfront Park are completed. 

“We have to check to see how, if we can afford the lights, can we do one field? We do two or three? How quickly can we advance that,” Cote said. “We'll have to explore those options as we work through this year before next year's budget, if we can advance one or two or three fields.”

 

Latest News

×

Your free article limit has been reached this month.
Subscribe now for unlimited digital access to our award-winning local news.